Salvează căutarea Adaugă anunț
Vei fi notificat de câte ori:

Trimite unui prieten

Trimite

De închiriat fosta clinică Regina Maria lângă Piața Unirii

11 000 EUR negociabil
Valabil din 12/11/2025 10:31:02 AM
Repostat automat
Specificații
Suprafata utila
725 m2
Suprafata terenului
900 m2
Stadiul constructiei
Finalizat
Incalzire
centrala proprie
Numar niveluri
3
Locuri parcare
10
Cod de identificare
8241
Destinatie anterioara
clinica
Coridor
Interior
Stare imobil
Modernizat
Grad ocupare cladire
Imediat
Nr. niveluri subterane
1
Descriere
Agenția Reform oferă spre închiriere o proprietate de excepție, fosta clinică Regina Maria, situată într-o zonă ultracentrală, la câțiva pași de Piața Unirii.
Cu o suprafață totală de 725 m și posibilitatea de a mansarda podul, acest imobil este pretabil pentru sediu de firmă reprezentativ, birouri premium, spațiu comercial sau alte activități similare, datorită compartimentării flexibile și poziției excelente.

Descrierea clădirii:

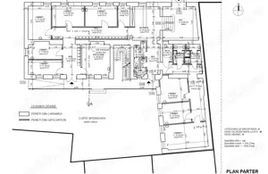
Clădirea este dispusă pe patru niveluri: demisol, parter, etaj și pod mansardabil.
Demisol: 3 încăperi versatile, sală de așteptare, camera centralei termice, grup sanitar, depozit și boxă.
Parter: 9 încăperi spațioase, sală de recepție, cameră de server, 2 vestiare și 3 grupuri sanitare. Înălțime interioară: 4.2 m.
Etaj: 6 încăperi, 3 birouri, sală multifuncțională, 3 vestiare cu grup sanitar și un oficiu. Înălțime interioară: 3.8 m.
Pod mansardabil: Înălțime maximă de peste 4 metri, momentan utilizat parțial ca depozit.

Dotări și avantaje:
Compartimentări din gipscarton, ușor de modificat după necesitate.
Multiple grupuri sanitare, iar fiecare încăpere dispune de apă și canalizare.
Încălzire cu centrală termică pe gaz (situată la demisol).
Sistem de aer condiționat pentru confort termic optim.
Zonă protejată din punct de vedere istoric, dar imobilul nu este monument istoric, ceea ce permite adaptări și modificări funcționale după necesitate !!!!

Suprafață utilă: 725 m + pod mansardabil
Parcări amenajate: 6-10 locuri
Chirie lunară: 11.000 Euro, negociabil


ID anunț: 1743577014

Raportează
Fă ofertă

Anunțuri recomandate

Contactează vânzătorul
Pentru a reduce riscul mesajelor de tip spam, adresele de email nu sunt permise in mesagerie.
Caractere rămase: 3000
Adaugă fișier
? Fișiere acceptate: jpg, jpeg, png, doc, pdf, txt, xls, docx, xlsx, odt, heic, heif, cu o mărime maximă de 10Mb.