Inchiriere spatiu 65mp
1 200
EUR
Valabil din 11/27/2025 11:03:56 AM
1
1 / 8
Specificații
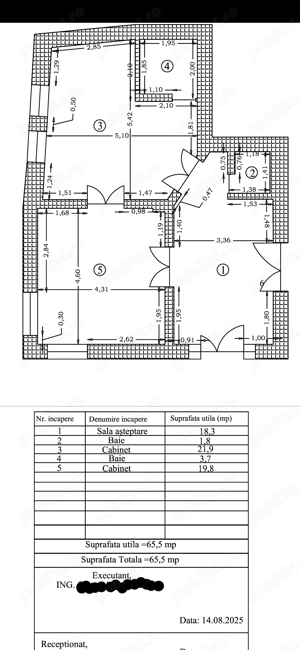
Suprafata utila
65
m2
Numar camere
2 camere
Stadiul constructiei
Finalizat
Incalzire
centrala proprie
Locuri parcare
2
Stare imobil
Modernizat
Structura rezistenta
Zidarie
Descriere
Inchiriere spațiu situat în Târgu Jiu, strada Victoriei.
Spatiul se preteaza pentru cabinet medical, cabinet psihologic sau birouri si este compus din: 2 birouri, hol si 2 grupuri sanitare.
Spatiul este renovat recent si beneficiaza de urmatoarel dotari: centrală termică, aer condiţionat, tâmplărie pvc cu geam tripan, precum şi de 2 locuri de parcare.
Mai multe detalii la telefon.
Raportează
Spatiul se preteaza pentru cabinet medical, cabinet psihologic sau birouri si este compus din: 2 birouri, hol si 2 grupuri sanitare.
Spatiul este renovat recent si beneficiaza de urmatoarel dotari: centrală termică, aer condiţionat, tâmplărie pvc cu geam tripan, precum şi de 2 locuri de parcare.
Mai multe detalii la telefon.
ID anunț: 1764234429
Fă ofertă
Anunțuri recomandate
Pentru a contacta acest utilizator, intră în contul tău Romimo.ro sau creează-ți rapid un cont nou!