Spatiu comercial de închiriat

1 100 EUR
Valabil din 2/6/2026 5:35:03 PM
Specificații
Suprafata utila
56 m2
Anul constructiei
1973
Descriere
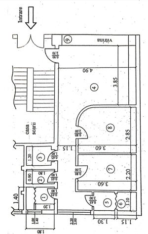
Se oferă spre închiriere spațiu comercial situat la parter, cu vizibilitate foarte bună și vitrină stradală generoasă, amplasat pe Strada Republicii nr. 35, municipiul Câmpulung, zonă centrală cu trafic pietonal intens.

Suprafață utilă totală: 56 mp, compartimentare funcțională, spațiul fiind utilizat anterior ca clinică de analize medicale, ceea ce îl face ideal pentru activități ce necesită acces facil pentru public.

Caracteristici principale:
parter, acces direct din stradă
vitrină mare, perfectă pentru branding și vizibilitate (conform fotografiei)
compartimentare eficientă: recepție hol, săli individuale, depozitare, grupuri sanitare
pretabil pentru: clinică, cabinet medical, farmacie, birouri, servicii.

Nu se acceptă activități de tip jocuri de noroc sau alimentație publică cu preparare de mâncare.

Poziția este un avantaj major, spațiul fiind situat într-o zonă centrală, consacrată pentru activități comerciale și servicii, cu expunere excelentă la stradă.

Chirie: 1100 Euro lună

ID anunț: 1766994012

Raportează
Fă ofertă

Anunțuri recomandate

Contactează vânzătorul
Pentru a reduce riscul mesajelor de tip spam, adresele de email nu sunt permise in mesagerie.
Caractere rămase: 3000
Adaugă fișier
? Fișiere acceptate: jpg, jpeg, png, doc, pdf, txt, xls, docx, xlsx, odt, heic, heif, cu o mărime maximă de 10Mb.