Spatiu Comercial | Front Stradal | Vitrina | Lacul Tei

1 100 EUR
Valabil din 2/4/2026 3:49:01 PM
Specificații
Suprafata utila
65 m2
Anul constructiei
1938
Descriere
Va oferim spre inchiriere un spatiu comercial cu pontetial deosebit .
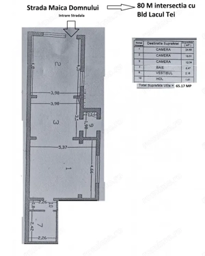
Localizare:
- situat pe strada Maica Domnului la numarul 64, o strada frecvent circulata cu mult trafic pietonal si auto
- se afla la 80 de m de intersectia Maica Domnului cu Lacul Tei
- vis a vis este o gradinita
- la 40 de m este o scoala
- in spatele imobilului, pe o strada adiacenta este un liceu
- la 10 minute se afla facultatea UTCB Detalii Tehnice:
- suprafata este de 65 mp
- deschiderea la strada este de 4 m cu vitrina
- dispune de centrala proprie cu contor de gaze individual
- dispune de o unitate sanitara - dispune de o unitate AC
- locatie are o singura intrare din strada Pretabil pentru magazin, cabinet, birouri sau orice afacere ar putea viza copii parinti.

Pentru o posibila vizionare, detalii sau oferte similare, nu ezitati sa ma contactati.
Pentru aceasta proprietate se percepe comision 50%+TVA din valoare chiriei pe o luna

ID anunț: 1762848448

Raportează
Fă ofertă

Anunțuri recomandate

Contactează vânzătorul
Pentru a reduce riscul mesajelor de tip spam, adresele de email nu sunt permise in mesagerie.
Caractere rămase: 3000
Adaugă fișier
? Fișiere acceptate: jpg, jpeg, png, doc, pdf, txt, xls, docx, xlsx, odt, heic, heif, cu o mărime maximă de 10Mb.