Apartament 3 camere zona 1 Decembrie 1918 - Auchan Titan
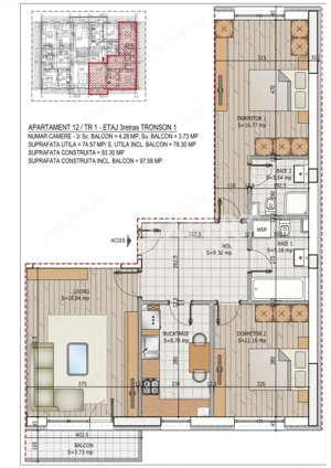
Se vinde apartament 3 camere zona 1 Decembrie 1918 - Auchan Titan, etaj 6 din 8 , conf 1, semidec. suprafata 70 mp. an constructie 1980, bloc anvelopat, apartamentul are gresie, faianta, termopan, parchet, mobilat si utilat. Apartamentul este semidecomandat, are 2 grupuri sanitare, din care unul cu ...
1714 EUR/m2 | 70 m2
Sector 3, Bucuresti
ieri 02:36
