Salvează căutarea Adaugă anunț
Vei fi notificat de câte ori:

Trimite unui prieten

Trimite

Zona Mihai Bravu sp 122 mp trafic intens

4 500 EUR
Valabil din 11/18/2025 12:35:27 AM
Specificații
Suprafata utila
122 m2
Suprafata construita
150 m2
Anul constructiei
1980
Descriere
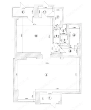
Imobiliar Expert Grup va propune spre inchiriere spatiu comercial in suprafata de 122 mp situat in zona Mihai Bravu. Spatiul are vitrina de 9 ml, 2 usi de acces prin spate pentru aprovizionare. Spatiul este ideal pentru cafenea, market, second hand, etc.

ID anunț: 1762769437

Raportează
Fă ofertă

Anunțuri recomandate

Contactează vânzătorul
Pentru a reduce riscul mesajelor de tip spam, adresele de email nu sunt permise in mesagerie.
Caractere rămase: 3000
Adaugă fișier
? Fișiere acceptate: jpg, jpeg, png, doc, pdf, txt, xls, docx, xlsx, odt, heic, heif, cu o mărime maximă de 10Mb.