Salvează căutarea Adaugă anunț
Vei fi notificat de câte ori:

Trimite unui prieten

Trimite

Serban Voda - Carol - Tineretului - 2 camere cu terasa

255 254 EUR 3113 EUR/m2
Valabil din 10/30/2025 4:48:40 PM
Repostat automat
Specificații
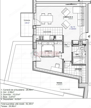
Suprafata utila
82 m2
Numar bai
1
Etaj
Anul constructiei
2026
Numar niveluri
4
Numar bucatarii
1
Numar balcoane
1
Numar terase
1
Vecinatati
Magazine, Piata, Gradinita, Scoala, Transport public, Metrou, Parc, Lac, Hotel, Bar/Pub, Restaurant, Mall/Centru comercial, Loc de joaca, Ansamblu rezidential, Spital
Amenajare strazi
Asfaltate, Mijloace de transport in comun
Utilitati generale
Apa, Gaz, Curent, Canalizare
Sistem incalzire
Incalzire prin pardoseala
Contorizare
Contor gaz, Apometre
Descriere
Serban Voda - Parcul Carol - Parcul Tineretului - 2 camere cu 25mp terasa

Proprietate in exclusivitate Premier Imobiliare

Va prezentam spre achizitie in apartament de 2 camere, in suprafata totala utila de 82mp avand in componenta un balcon de 5mp si o terasa de 25 mp, special gandita pentru a fi spatiul de relaxare, fie ca doriti sa beti cafeaua cu prietenii sau sa cititi cartea preferata.

Atentia executarii finisajelor va crea caminul mult dorit de dumneavoastra.

Locatia?
Calea Serban Voda, Parcul Carol la 250m, Parcul Tineretului la 100m, Metrou Tineretului la 900m, Unirii si Casa Poporului la 5 minute cu masina!

Reprezinta cu succes locul intim al unui cuplu la inceput de drum sau, de ce nu, o investitie, fiind IDEALA pentru inchiriere in regim hotelier, AirBnB.

Reduceri considerabile pentru avans de minim 50% (in numar limitat)
Pret fara TVA!

Suna-ma sa discutam detalii! George 0730.888.280

Multumim pentru atentia acordata anunturilor noastre!
Serviciul nou oferit de PREMIER Imobiliare! Solicita acum VIZIONARE ONLINE pentru aceasta proprietate!

COMISION 0%

Această proprietate se poate achiziționa prin orice tip de credit bancar.

Departamentul nostru financiar Premier Credit Hub vă stă la dispoziție GRATUIT (comision 0%) pentru:
- identificarea celei mai bune soluții de finanțare;
- întocmirea dosarului bancar complet;
- obținerea rapidă a creditului necesar achiziției.

Beneficiați de un serviciu ALL IN ONE, cu acces direct la ofertele tuturor băncilor comerciale din România.
Se acceptă inclusiv venituri din străinătate, astfel încât fiecare client să poată cumpăra în cele mai avantajoase condiții.

Solicitați acum o simulare de credit direct din anunț sau cereți detalii consultantului Premier Imobiliare!

ID anunț: 1760626434

Raportează
Fă ofertă

Anunțuri recomandate

Contactează vânzătorul
Pentru a reduce riscul mesajelor de tip spam, adresele de email nu sunt permise in mesagerie.
Caractere rămase: 3000
Adaugă fișier
? Fișiere acceptate: jpg, jpeg, png, doc, pdf, txt, xls, docx, xlsx, odt, heic, heif, cu o mărime maximă de 10Mb.

EXCELENT - 3 evaluări

Cei mai mulți utilizatori ar descrie experiența cu acest utilizator ca fiind foarte bună