Salvează căutarea Adaugă anunț
Vei fi notificat de câte ori:

Trimite unui prieten

Trimite

Proprietar . Casa individuala P+1Etaj. 3 Dormitoare. 1 Birou. 3 Bai. Bucatarie Inchisa. CarPort

235 000 EUR 2043 EUR/m2
Valabil din 12/24/2025 4:04:16 PM
Specificații
Suprafata utila
115 m2
Suprafata terenului
553 m2
Numar camere
6 camere sau mai multe
Suprafata construita
180 m2
Numar bai
3
Anul constructiei
2025
Stadiul constructiei
Rosu
Incalzire
centrala proprie
Numar niveluri
2
Structura de rezistenta
beton
Invelitoare acoperis
Tigla
Numar bucatarii
1
Numar garaje
1
Suprafata desfasurata
200 m2
Numar terase
2
Suprafata terase
14 m2
Numar fronturi
2
Utilitati generale
Apa, Canalizare, CATV, Curent, Gaz, Telefon
Sistem incalzire
Centrala imobil, Centrala proprie, Incalzire prin pardoseala
Climatizare
Aer conditionat
Acces internet
Fibra optica
Ferestre cu geam termopan
PVC
Usa intrare
PVC
Izolatii termice
Exterior
Podele
Gresie, Parchet
Usi interior
Lemn, PVC
Pereti
Faianta, Vopsea lavabila
Alte spatii utile
Debara
Dotari imobil
Acoperis, Curte
Descriere
Proprietar: Vând casă individuală nouă Calea Urseni, Moșnița Nouă.

Disponibilă la cheie sau la alb, cu opțiuni de personalizare a finisajelor și compartimentării!

În construcție încă se pot modifica finisajele sau compartimentarea!

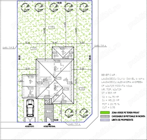
Locație excelentă:
Două fronturi stradale
Aproape de stația de transport în comun și drum asfaltat
Acces facil din Centura Timișoarei, zona Kaufland sau prin Urseni

Detalii tehnice:
Suprafață construită: 180 mp
Teren: 553 mp curte spațioasă, ideală pentru piscină, foișor sau anexă
Regim: Parter + Etaj + Pod + acoperiș din țiglă
Terasă acoperită: 14 mp + Carport: 18 mp

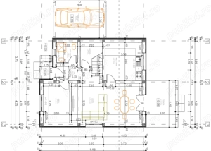
Compartimentare:
Parter: Living, birou dormitor, bucătărie închisă, baie, cameră tehnică, terasă
Etaj: 3 dormitoare (dormitor matrimonial cu dressing și baie, 2 dormitoare, baie suplimentară)

Construcție și dotări premium:
Cărămidă Porotherm + izolație 10 cm
Încălzire în pardoseală cu termostat în fiecare cameră
Tâmplărie PVC Salamander tripan (4 anotimpuri)
Instalație pregătită pentru panouri fotovoltaice + priză pentru mașină electrică
Finisaje la alegere (gresie, faianță, parchet, uși, obiecte sanitare, fațadă)
Posibilitate de modificare a compartimentării (în faza actuală de construcție)
Automatizări pentru porți + videointerfon

Curte amenajată:
Gard beton + metal, porți fier forjat, trotuare
Foraj propriu, pregătire pentru camere video și sistem de alarmă
Utilități: Apă, gaz, curent trifazic, canalizare.

Preț:
170.000 (intabulata,cu fatada si termopoane + la rosu interior)
225.000 (la alb)
240.000 (la cheie)
Proprietar direct fără comision!
Pentru detalii, poze sau programarea unei vizionări, contactați-ma.

ID anunț: 1756965256

Raportează
Fă ofertă

Anunțuri recomandate

Contactează vânzătorul
Pentru a reduce riscul mesajelor de tip spam, adresele de email nu sunt permise in mesagerie.
Caractere rămase: 3000
Adaugă fișier
? Fișiere acceptate: jpg, jpeg, png, doc, pdf, txt, xls, docx, xlsx, odt, heic, heif, cu o mărime maximă de 10Mb.