Vand cladire comerciala langa Piata Iosefin

450 000 EUR negociabil 500 EUR/m2
Valabil din 3/23/2026 9:30:37 AM
Specificații
Suprafata utila
900 m2
Anul constructiei
2005
Descriere
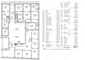
Vindem (suntem SRL) cladire cu scop comercial compusa din multiple CF-uri separate, conform releve-ului.
Cladirea este pretabila pentru activitati comerciale, depozit sau productie - si are multiple imbunatatiri: acoperis nou, geamuri velux schimbate in mansarda, circuit automatizat de incalzire (2 centrale pe gaz), instalatie electrica imnbunatatita pentru consum mare, birouri si bucatarii amenajate.
Se poate inchiria foarte usor, avand avantajul CF-urilor separate si spatii mici modulare, care se pot organiza dupa multe nevoi. Exista grup sanitar la parter, in mansarda si inca unul in zona de depozitare. In mansarda exista un spatiu open space care a fost folosit pentru cursuri de yoga.
La parter sunt 2 intrari din strada unde se pot face magazine cu vanzare spre public.
Este localizata chiar pe malul Begai si in zona sunt multe alte activitati comerciale, se poate ajunge extrem de usor cu mijloace de transport.
Este o cladire extrem de versatila, se poate folosi pentru multiple activitati - fie nevoi proprii, fie inchiriat catre terti.
Spatiu util mansarda 265m2, iar parter 580m2, demisol 60m2.

ID anunț: 1774251425

Raportează
Fă ofertă

Anunțuri recomandate

Contactează vânzătorul
Pentru a reduce riscul mesajelor de tip spam, adresele de email nu sunt permise in mesagerie.
Caractere rămase: 3000
Adaugă fișier
? Fișiere acceptate: jpg, jpeg, png, doc, pdf, txt, xls, docx, xlsx, odt, heic, heif, cu o mărime maximă de 10Mb.