Salvează căutarea Adaugă anunț
Vei fi notificat de câte ori:

Trimite unui prieten

Trimite

Vând teren intravilan în Salicea sau schimb cu apartament

119 500 EUR negociabil
Valabil din 9/24/2025 8:16:57 PM
Specificații
Descriere
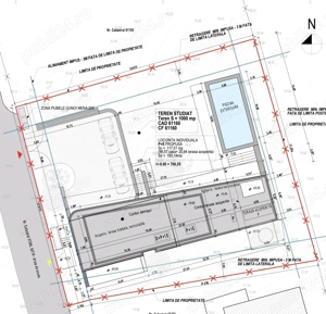
Vând teren intravilan în Salicea, cu autorizație de construire casa, cu o suprafață utilă de 269 mp, proiect piscina cu o suprafață de 49 mp. Regimul de înălțime este de D+P+1E. Frontul terenului este de aprox 30 m.
- Garaj cu 2 locuri de parcare + 2 locuri de parcare în curte.
- Demisol: garaj 47.29 mp, spațiu tehnic 16.63 mp, hol 2.41 mp
- Parter: Living, bucatarie, loc de luat masa 64.72 mp, chicineta 5 mp, baie 3 mp, casa de scara 7.69 mp, dormitor 1 - 29 mp, baie dormitor 1 - 4.83 mp, hol întrare 28 mp
- Etaj - hol 9 mp, spălătorie 8 mp, dormitor 2 - 14 mp, baie dormitor 2 - 4.5 mp, dormitor 3 - 22 mp, baie dormitor 3 - 12 mp.

Vând teren sau schimb cu apartament în Cluj-Napoca sau Floresti.

ID anunț: 1758100660

Raportează
Fă ofertă

Anunțuri recomandate

Contactează vânzătorul
Pentru a reduce riscul mesajelor de tip spam, adresele de email nu sunt permise in mesagerie.
Caractere rămase: 3000
Adaugă fișier
? Fișiere acceptate: jpg, jpeg, png, doc, pdf, txt, xls, docx, xlsx, odt, heic, heif, cu o mărime maximă de 10Mb.