De inchiriat apartament 2 camere in zona Lipovei
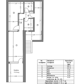
Ofer spre inchiriere apartament cu 2 camere in zona Lipovei, la etaju 2 din 4 cu o suprafata de 55 mp. Apartamenul este complet mobilat si dispune de centrala proprie!
55 m2
Lipovei, Timisoara, Timis
azi 09:02
