Salvează căutarea Adaugă anunț
Vei fi notificat de câte ori:
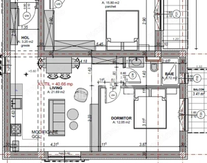
Apartament 4 camere , 95,05 mp utili , Etaj 1 , Finisaje Premium
6

Apartament 4 camere , 95,05 mp utili , Etaj 1 , Finisaje Premium

Apartament 4 camere – 95,05 mp utili | Etaj 1 | Finisaje Premium | Posibilitate de rate la dezvoltator Te invităm să descoperi un apartament generos cu 4 camere, aflat într-un imobil în construcție, cu termen de finalizare la sfârșitul anului 2025 – o alegere ideală pentru familii sau pentru cei care își doresc mai mult spațiu și confort. Situat la etajul 1, într-o clădire aerisită, cu doar 3 apartamente pe nivel, acest apartament are o suprafață utilă de 95,05 mp și o compartimentare inteligentă: Living cu bucătărie open space – spațiu modern pentru relaxare și socializare 3 dormitoare spațioase, perfecte pentru odihnă și intimitate 2 băi complet echipate 1 balcon – accesibil pentru momente de relaxare în aer liber ✅ Izolație cu vată bazaltică de 10 cm – confort termic excelent în orice sezon ✅ Încălzire în pardoseală – căldură uniformă și eficiență energetică ✅ Geamuri tripan (3 foi de sticlă + 3 garnituri) – izolare fonică și termică de top ✅ Centrală termică Bosch în condensare – fiabilitate și economie ✅ Balcon hidroizolat – durabil și protejat în timp ✅ Iluminat exterior – siguranță și atmosferă plăcută ✅ Finisaje premium – detalii care adaugă rafinament fiecărui colț al casei ✅ Loc de parcare inclus in pret Imobilul include: Spațiu comercial la parter 3 apartamente pe nivel Mansardă → Comunitate restrânsă, liniștită și bine organizată. Preț: 157.000 € + TVA Posibilitate de achiziție în rate direct la dezvoltator, pe termen scurt! SibiuEstate – Casa ta, povestea noastră.

95.5 m2

Sibiu, Sibiu

 Imobil monument istoric de vânzare ,Strada Târgului, Sibiu
20

Imobil monument istoric de vânzare ,Strada Târgului, Sibiu

Imobil monument istoric de vânzare – Strada Târgului, Sibiu Construit în 1825 | Necesită renovare completă | Suprafață teren: 205 mp O oportunitate unică de investiție în inima orașului Sibiu – vă prezentăm un imobil de patrimoniu, clasificat ca monument istoric, amplasat pe pitoreasca Stradă a Târgului, într-o zonă cu valoare culturală și istorică deosebită. Date tehnice ale proprietății: An construcție: 1825 Suprafață totală teren: 205 mp Amprentă la sol: 100 mp Curte interioară: 105 mp – ideală pentru amenajare în scop rezidențial sau comercial Subsol: 55,95 mp – spațiu boltit, pavat cu cărămidă, perfect pentru crama sau spațiu de arhivare Parter: compus din gang de acces, casă a scării și trei camere cu suprafețe de 22,35 mp, 13,8 mp și 24,5 mp Etaj: patru încăperi + hol, total 94,4 mp Mansardă: două încăperi + hol, total 73 mp ️ Starea imobilului: Clădirea necesită renovare completă, oferind însă un potențial imens de reabilitare în acord cu specificul istoric al zonei. Structura sa solidă și compartimentarea generoasă permit adaptarea la multiple funcționalități: locuință de patrimoniu, sediu de firmă, spațiu cultural sau boutique hotel. Localizare premium – situat în zona centrală, la doar câțiva pași de obiective turistice, instituții și zone comerciale, imobilul beneficiază de vizibilitate excelentă și accesibilitate. Ideal pentru investitori, restauratori sau dezvoltatori cu viziune, care caută să valorifice farmecul autentic al Sibiului istoric. Pentru mai multe informații și vizionări, nu ezitați să ne contactați! SibiuEstate – Casa Ta, Povestea Noastră

284.0 m2

Sibiu, Sibiu

 Duplex modern în construcție ,Str. Bradului, Șelimbăr
9

Duplex modern în construcție ,Str. Bradului, Șelimbăr

Duplex modern în construcție – Str. Bradului, Șelimbăr | Teren 400 mp | Suprafață utilă 119,5 mp Situat într-o zonă liniștită și în plină dezvoltare din Șelimbăr, acest duplex aflat în construcție pe strada Bradului este alegerea perfectă pentru o familie care își dorește spațiu, confort și intimitate – totul într-un cadru modern. Detalii proprietate: Suprafață teren: 400 mp Suprafață utilă: 119,5 mp Compartimentare parter: ️ Living cu bucătărie open space – 28 mp (cu posibilitate de închidere) ️ Dormitor – 12 mp Baie Hol Casă a scării ⬆️ Etaj: ️ 3 dormitoare luminoase Dressing Baie spațioasă Curte generoasă – ideală pentru grădină, terasă, loc de relaxare sau joacă pentru cei mici . ✨ Avantaje: Acces rapid către Sibiu și principalele puncte de interes Construcție nouă cu posibilitate de personalizare Compartimentare practică și echilibrată, ideală pentru familii SibiuEstate – Casa Ta, Povestea Noastră ❤️ Contactează-ne pentru mai multe detalii sau pentru a stabili o vizionare! Aceasta poate fi noua ta poveste.

119.5 m2

Sibiu, Sibiu

Apartament 2 camere , etaj 2, zona Tiglari
6

Apartament 2 camere , etaj 2, zona Tiglari

Apartament 2 camere – etaj 2, zona Țiglari Preț: 59900 € Îți prezentăm un apartament cu 2 camere, nedecomandat, situat în zona Țiglari – o oportunitate excelentă atât pentru locuit, cât și pentru investiție! Locuința este amplasată la etajul 2 al unui bloc cu 4 etaje și are o suprafață utilă de 34 mp. Compartimentarea este practică și funcțională: hol de intrare, baie, living, dormitor și bucătărie separată. Dotări: ✔️ ușă metalică la intrare ✔️ geamuri termopan din PVC ✔️ centrală termică proprie și calorifere Apartamentul se bucură de multă lumină naturală, datorită poziționării avantajoase și lipsei clădirilor învecinate care să obstrucționeze vederea. Zona Țiglari este în continuă dezvoltare și oferă acces rapid la: magazine alimentare spații verzi și locuri de joacă mijloace de transport în comun școli și grădinițe Pentru detalii suplimentare sau pentru a programa o vizionare, nu ezita să ne contactezi! Casa Ta, Povestea Noastră – SibiuEstate

34.0 m2

Sibiu, Sibiu

Casa tip duplex 5 camere 350 mp teren terasa cu zona gratar si pivnita
20

Casa tip duplex 5 camere 350 mp teren terasa cu zona gratar si pivnita

Oportunitate unică! Duplex modern cu zid dublu – Sibiu, zona Vasile Aaron/Milea Descoperiți o locuință spațioasă și elegantă, ideală pentru o familie numeroasă sau pentru cei care apreciază confortul și intimitatea! ✅ Suprafață utilă: 180 mp ✅ Compartimentare inteligentă: Parter: 2 intrări separate, cameră mare la stradă, hol, baie, bucătărie, living generos cu acces spre grădină Etaj: 3 dormitoare, dressing, baie spațioasă, pod mansardabil Curte amenajată: ✔️ Acces auto automatizat ✔️ Zonă verde perfectă pentru relaxare ✔️ Filigorie de 50 mp dotată cu grătar ceramic, sobă, chiuvetă cu apă, baie de serviciu ✔️ Pivniță generoasă sub filigorie Locație excelentă – aproape de toate facilitățile urbane din zona Vasile Aaron/Milea! Preț: 328000 € Contactați-ne pentru detalii și vizionare!

180.0 m2

Sibiu, Sibiu

Spatiu comercial cu vitrina, 93 mp, 4 locuri parcare Calea Cisnadiei
7

Spatiu comercial cu vitrina, 93 mp, 4 locuri parcare Calea Cisnadiei

Spațiu Comercial de Vânzare – Calea Cisnădiei, Cartier Arhitectilor Oferim spre vânzare un spațiu comercial modern, situat într-o zonă cu vizibilitate excelentă din strada principală, în zona Calea Cisnădiei. Caracteristici: ✅ Suprafață utilă: 93 mp ✅ Compartimentare eficientă: open space, birou și grup sanitar ✅ 2 căi de acces – intrare principală + acces secundar pentru aprovizionare ✅ 4 locuri de parcare proprii incluse în preț Avantaje: ✔️ Parter de vilă P+2 – acces ușor și vizibilitate maximă ✔️ Zonă cu densitate mare de locuitori și trafic intens ✔️ Potrivit pentru diverse activități comerciale, birouri sau servicii Preț: 187.000 € + TVA Pentru mai multe detalii sau pentru a programa o vizionare, nu ezitați să ne contactați!

93.0 m2

Sibiu, Sibiu

Apartament 3 camere  , 88,7 mp utili , Etaj 1
5

Apartament 3 camere , 88,7 mp utili , Etaj 1

Apartament 3 camere – 88,7 mp utili | Etaj 1 | Finisaje Premium | Posibilitate de rate la dezvoltator Descoperă un apartament spațios și modern, aflat într-un imobil în construcție, cu termen de finalizare la sfârșitul anului 2025 – ideal pentru cei care își doresc o locuință nouă, realizată cu grijă pentru confort și calitate. Situat la etajul 1, într-o clădire cu regim redus (doar 3 apartamente pe nivel), apartamentul are o suprafață utilă de 88,7 mp și o compartimentare perfect echilibrată: Living generos cu bucătărie open space 2 dormitoare luminoase 2 băi complet funcționale 2 balcoane ✅ Izolație cu vată bazaltică de 10 cm – confort termic superior ✅ Încălzire în pardoseală – căldură uniformă și economie de spațiu ✅ Geamuri tripan (3 foi de sticlă + 3 garnituri) – izolare fonică și termică excelentă ✅ Centrală termică Bosch în condensare – eficiență și fiabilitate ✅ Balcoane hidroizolate – durabilitate crescută ✅ Iluminat exterior – siguranță și atmosferă plăcută ✅ Finisaje de înaltă calitate – design rafinat în fiecare detaliu ✅ Loc de parcare inclus in pret Imobilul este compus din: Spațiu comercial la parter 3 apartamente la etaj Mansardă → O comunitate restrânsă, aerisită și bine organizată. Preț: 146.500 € + TVA Posibilitate de achiziție în rate direct la dezvoltator, pe termen scurt! SibiuEstate – Casa ta, povestea noastră.

88.7 m2

Sibiu, Sibiu

De vânzare: Proprietate cu 2 unități locative ,Zona Lupeni, Sibiu
13

De vânzare: Proprietate cu 2 unități locative ,Zona Lupeni, Sibiu

De vânzare: Proprietate cu 2 unități locative – Zona Lupeni, Sibiu ✨ Vă prezentăm o oportunitate de achiziție a unei proprietăți compuse din două case, aflate pe același teren, situate într-o zonă liniștită și bine conectată din cartierul Lupeni, Sibiu. Caracteristici generale: Suprafață totală teren: 540 mp Curte spațioasă cu zonă verde, pomi fructiferi, viță de vie și grădină Anexe gospodărești pentru depozitare Acces secundar cu drept de servitute Casa principală: Suprafață utilă: 120 mp 3 camere decomandate, luminoase și spațioase Bucătărie generoasă, hol și baie Demisol de 79 mp împărțit în 3 încăperi mari și înalte Pod mansardabil, ideal pentru extindere Dotări: ferestre termopan, centrală termică, parchet Casa secundară: Suprafata utilă: 62 mp Compusă dintr-un hol de 9,7 mp, o baie de 4,4 mp ,o bucătărie cu camară avand impreună 13 mp. Imobilul mai are două camere : una de 19,25 mp si cealaltă de 15,75 mp, aceasta avînd acces și din curte. Necesită renovare, oferind posibilitatea de personalizare Spațiu ideal pentru locuință separată, birou sau închiriere Alte avantaje: Zonă liniștită, aproape de școli, magazine și alte puncte de interes Ideală atât pentru locuit, cât și pentru investiție * Posibilitate de extindere: pe teren există un al treilea imobil (proprietate separată, cu acces prin servitute), aflat în stadiu nefinalizat și nelocuit Pentru mai multe detalii și programarea unei vizionări, nu ezitați să mă contactați! SibiuEstate – Casa ta, Povestea noastră

119.82 m2

Sibiu, Sibiu

Apartament 2 camere cu balcon și parcare , Doamna Stanca
6

Apartament 2 camere cu balcon și parcare , Doamna Stanca

Apartament 2 camere – Etaj 3, Str. Doamna Stanca | 56,15 mp utili + balcon 6,7 mp | Loc parcare inclus Descoperă confortul unui apartament modern, ideal pentru cupluri sau investiție, situat într-o zonă în plină dezvoltare. Locuința are o suprafață utilă de 56,15 mp, compartimentată eficient: Living spațios separat – loc perfect pentru relaxare și socializare Bucătărie închisă – oferă intimitate și un plus de confort la gătit Dormitor confortabil – ideal pentru odihnă Baie modernă – bine proporționată Balcon de 6,7 mp – ideal pentru momente de relaxare în aer liber Predare: februarie 2026 Exterior la cheie Izolație termică cu polistiren expandat de 10 cm (EPS 80) Tencuială decorativă, tâmplărie PVC cu 3 foi de sticlă și protecție solară, 5 camere de ventilare Gresie antiderapantă pe balcon Casa scării finisată complet: gresie, balustrade, cutii poștale individuale, interfon Toate utilitățile branșate și contorizare individuală (gaz, apă, curent) Stradă, trotuare și parcări amenajate cu dale de beton, iluminat public și spații verzi Interior la alb Ușă metalică de acces placată cu MDF Încălzire în pardoseală Pereți zugrăviți cu lavabil alb Instalație electrică completă (tablou general individual, doze, prize și întrerupătoare Schneider) Instalație termică multistrat, centrală termică în condensație Bosch La cerere, apartamentul poate fi predat finisat la cheie, cu materiale alese de cumpărător. Preț: 91.000 € + TVA (110.110 €) – la alb Loc de parcare inclus în preț Sibiuestate – Casa ta, Povestea noastră

56.15 m2

Sibiu, Sibiu

Super Oferta 1250 euro mp Spatiu Comercial cu Vitrina 173 mp 3 parcari
4

Super Oferta 1250 euro mp Spatiu Comercial cu Vitrina 173 mp 3 parcari

Spațiu Comercial de Vânzare – 172,6 mp + 3 locuri de parcare – Calea Surii Mici, Sibiu,situat la parterul unui bloc nou (P+3+etaj+R) Oportunitate de investiție 1250 euro mp + TVA! Spațiu comercial este open-space, baie separata si are suprafata de 172,6 mp utili avand posibilitate de recompartimentare in spatii mai mici cu acces separat. Posibilitate convertire in locuinta certificat de urbanism valabil in acest sens. ✅ Semifinisat, dotat cu grup sanitar, centrală termică proprie, contorizare individuală ✅ 4 căi de acces (2 frontale + 2 laterale) ✅ Curent trifazic, ✅ 3 locuri de parcare incluse ✅ Suprafețe vitrate mari, vizibilitate excelentă, vad auto și pietonal ✅ Ideal pentru farmacie, magazin, birouri, grădiniță, after-school, sediu bancar ✅ Acces usor spre Centru, Aeroport, Zona Industrială și Autostrada A1 Preț avantajos pentru investitori! Contactează-ne pentru mai multe detalii sau vizionare!

173.0 m2

Sibiu, Sibiu

Apartament cu 2 camere , locuința ideală în zona Doamna Stanca
2

Apartament cu 2 camere , locuința ideală în zona Doamna Stanca

Apartament cu 2 camere – locuința ideală în zona Doamna Stanca ✨ Descoperă un apartament modern, eficient compartimentat și situat într-un ansamblu nou din zona Doamna Stanca – un cartier în continuă expansiune, perfect pentru locuire sau investiție! Suprafață utilă: 39,90 mp Balcon: 3.41 mp – spațiu ideal pentru relaxare Loc de parcare intabulat separat Living luminos – 21,00 mp Dormitor generos – 12,05 mp Baie – 3,72 mp Balcon cu acces facil – perfect pentru a savura o cafea în aer liber Dotări de calitate superioară: ✔️ Încălzire în pardoseală – confort termic optim ✔️ Geamuri termopan cu 3 foi de sticlă – eficiență energetică și izolație fonică ✔️ Centrală termică în condensare – costuri reduse de întreținere Apartamentul se află la etajul 3 al unui bloc nou, într-o zonă liniștită, cu acces rapid către centre comerciale, școli și mijloace de transport. Contactează-ne pentru o vizionare și lasă-ne să te ajutăm să găsești locuința perfectă pentru tine! SibiuEstate – Casa Ta, Povestea Noastră

39.9 m2

Sibiu, Sibiu

Apartament modern, 3 camere , finisaje premium, Calea Cisnadiei
10

Apartament modern, 3 camere , finisaje premium, Calea Cisnadiei

Apartament modern cu 3 camere Sibiu, Calea Cisnădiei – zonă în plină dezvoltare ✨ Locuință confortabilă, cu finisaje premium și compartimentare practică, ideală pentru familie sau investiție! Suprafață utilă: 73,1 mp Compartimentare: ✅ Living spațios cu bucătărie open space – perfect pentru relaxare și socializare ✅ 2 dormitoare luminoase ✅ 2 băi moderne ✅ Balcon de 6,55 mp – spațiu pentru momente de relaxare Avantaje și dotări premium: ✔ Intrare separată, pentru intimitate maximă ✔ 1 loc de parcare inclus ✔ Izolație cu vată bazaltică de 10 cm – eficiență termică superioară ✔ Balustrade din sticlă securizată – design modern și siguranță ✔ Sistem de supraveghere video 24/7 – protecție permanentă ✔ Încălzire în pardoseală – confort termic optim în fiecare cameră ✔ Ferestre premium cu 3 foi de sticlă + 3 garnituri – izolare fonică și termică excepțională ✔ Centrală termică Bosch în condensare – eficiență energetică ridicată ✔ Iluminat exterior pentru un ambient plăcut și sigur ✔ Finisaje de înaltă calitate, ce adaugă un plus de eleganță fiecărui detaliu Preț: 146.200 € + TVA SibiuEstate – Casa ta, Povestea noastră

73.1 m2

Sibiu, Sibiu

Terenuri intravilane cu PUZ și utilități în Cisnădioara
2

Terenuri intravilane cu PUZ și utilități în Cisnădioara

Terenuri intravilane cu PUZ și utilități în Cisnădioara – priveliște deosebită către Măgura și Cetatea Cisnădioarei O oportunitate excelentă de investiție sau dezvoltare rezidențială! Vă propunem spre vânzare 5 parcele de teren intravilan situate într-o zonă superbă din Cisnădioara, cu priveliste panoramică asupra localității, Măgura și Cetatea Cisnădioarei. Terenurile beneficiază de PUZ aprobat și toate utilitățile necesare. Detalii generale: Clasificare teren: Intravilan Destinație: Locuințe individuale și colective mici Regim de înălțime admis: P+E / P+M POT: 25% CUT: 0.7 mp ADC / mp teren Utilități: curent electric, gaze naturale, fibră optică (existente), apă și canalizare în curs de finalizare Acces auto: drum pietruit în lucru, prevăzut pentru asfaltare, trotuare și iluminat public Acte: Teren intabulat, Certificat de Urbanism, Plan Cadastral, Carte Funciară Suprafețe disponibile: 706 mp – dimensiuni: 28 ml x 25 ml 824 mp – dimensiuni: 30.4 ml x 28.7 ml 814 mp – dimensiuni: 34 ml x 25 ml 997 mp – dimensiuni: 35 ml x 27.7 ml Alte parcele disponibile la cerere Toate parcelele sunt situate pe o stradă locuită, într-o zonă cu dezvoltare rezidențială activă, unde sunt deja construite mai multe case moderne. Preț: 135 euro/mp ✔ Se acceptă orice variantă de plată (inclusiv credit bancar) ✔ Ideal pentru construcție imediată sau investiție Locație deosebită • Priveliște panoramică • Infrastructură în dezvoltare • Toate utilitățile incluse Pentru mai multe detalii și programarea unei vizionări, nu ezitați să ne contactați!

706.0 m2

Cisnadioara, Sibiu

Apartament cu 2 camere, zona Doamna Stanca
2

Apartament cu 2 camere, zona Doamna Stanca

Apartament cu 2 camere – confort și compartimentare excelentă în zona Doamna Stanca ✨ Îți prezentăm un apartament modern și bine compartimentat, ideal pentru cei care caută confort, funcționalitate și calitate, într-o zonă aflată în plină dezvoltare – Doamna Stanca. Suprafață utilă: 55,50 mp Balcon: 7,59 mp – include un spațiu de depozitare închis, perfect pentru organizare Loc de parcare intabulat separat Living spațios – 19,53 mp Bucătărie închisă – 11,02 mp Dormitor confortabil – 13,27 mp Baie – 4,38 mp Balcon generos – spațiu ideal pentru relaxare + depozitare Apartamentul dispune de: ✔️ Încălzire în pardoseală ✔️ Geamuri termopan cu 3 foi de sticlă – izolație termică și fonică superioară ✔️ Centrală termică în condensare – eficiență ridicată și consum redus Situat într-o zonă liniștită și bine conectată la facilități urbane, apartamentul este ideal atât pentru locuit, cât și pentru investiție. Programează o vizionare și vino să descoperi noua ta locuință! SibiuEstate – Casa Ta, Povestea Noastră

55.5 m2

Sibiu, Sibiu

Teren  construibil ,la sosea, intre Vale si Sibiel, zona cu potential
13

Teren construibil ,la sosea, intre Vale si Sibiel, zona cu potential

Teren de vânzare – 2402 mp, extravilan Săliște, între Vale și Sibiel Vă prezentăm un teren cu un potențial excelent, situat în extravilanul UAT Săliște, între localitățile Vale și Sibiel, cu acces direct la drumul județean. Caracteristici principale: Suprafață totală: 2402 mp Deschidere la drum: 153 ml Lățime: 29,41 m Categoria de folosință: 1402 mp teren arabil 1000 mp teren pentru construcții Utilități: apă, curent și gaz – la limita proprietății În imediata vecinătate se află numeroase construcții – case, pensiuni și grădinițe, ceea ce face ca zona să fie una în plină dezvoltare și foarte potrivită pentru investiții. Poziționarea terenului îl recomandă pentru construirea unei locuințe, a unei pensiuni sau pentru alte proiecte, într-un cadru natural deosebit. Preț: 65.000 EUR

2402.0 m2

Saliste, Sibiu

Casa individuala generoasa 5 camere, carport si pivnita curte 500 mp
18

Casa individuala generoasa 5 camere, carport si pivnita curte 500 mp

Super Proprietate de Vânzare - Casa Individuală cu Priveliste Panoramica! Localizare: Zona Casa de Apă - Calea Cisnădiei, Sibiu Vă propunem spre vânzare o casă individuală situată într-o locație deosebită, ideală pentru cei care își doresc liniște, confort și o priveliște superbă. Detalii Tehnice: Suprafață utilă: 175 mp Regim de înălțime: S+P+1+Pod Teren: 500 mp teren liber Compartimentare: Subsol: Pivniță de 20 mp Parter: Living spațios și luminos Bucătărie separată Birou Baie Hol generos Terasă de 26 mp Carport de 24 mp Etaj: 3 dormitoare (unul cu baie proprie și dressing) Baie secundară Hol Balcon cu acces din două dormitoare, cu vedere panoramică ✨ Dotări și Finisaje: Predare la stadiul de alb în interior și la cheie pe exterior Curte împrejmuită Încălzire în pardoseală Pompa de căldură Geamuri termopan cu 5 camere și 3 foi de sticlă pentru eficiență termică superioară Preț: 270.000 Euro Vă așteptăm la vizionare! Nu ratați oportunitatea de a locui într-o casă modernă, într-o zonă liniștită, cu o priveliște care îți taie respirația! Sibiu Estate - Casa ta, povestea noastră!

175.0 m2

Sibiu, Sibiu

Casă Individuală cu Garaj , Cartierul Arhitecților, zona Casa de Apă
19

Casă Individuală cu Garaj , Cartierul Arhitecților, zona Casa de Apă

Casă Individuală + Garaj | Cartierul Arhitecților, zona Casa de Apă | Comision 0% Regim de înălțime: P+1+Pod Suprafață utilă: 145 mp Teren generos: 500 mp Compartimentare inteligentă: ✔ Parter: hol cu acces direct în garaj, living spațios cu ieșire pe terasă, bucătărie separată, baie, cameră tehnică ✔ Etaj: 3 dormitoare mari, 2 dressinguri, baie spațioasă, hol ✔ Pod: ideal pentru depozitare Stadiu predare: Exterior: gard cu soclu de beton, curte nivelată Interior: predare "la alb" – pereți gletuiți, șapă elicopterizată, instalații termice/electrice/sanitare, încălzire în pardoseală, tâmplărie termopan, ușă intrare + ușă terasă, două straturi de lavabilă Stradă asfaltată Preț: 220.000 Euro Totul pregătit pentru ca tu să-i pui amprenta personală! Contactează-mă pentru detalii sau programarea unei vizionări!

145.0 m2

Sibiu, Sibiu

Apartament 2 camere, balcon 8 mp și grădină 36 mp, parter!
9

Apartament 2 camere, balcon 8 mp și grădină 36 mp, parter!

De vânzare: Apartament modern cu 2 camere, balcon și grădină! ✨ Cauți un apartament confortabil, cu spațiu exterior generos și un design modern? Aceasta ar putea fi locuința ideală pentru tine! Suprafață utilă: 54 mp Spații exterioare: ✅ Balcon – 8 mp ✅ Grădină proprie – 36 mp Compartimentare practică și funcțională: ✅ Living open-space cu bucătărie ✅ Dormitor spațios ✅ Baie modernă ✅ Hol generos Dotări si finisaje : ✔ Pereti tencuiti gletuiti ✔ Sape elicopterizate ✔ Centrală termică cu încălzire în pardoseală ✔ Geamuri termopan Salamander (3 foi de sticlă) ✔ Izolație termică exterioară ✔ Instalații electrice, termice și sanitare complete ✔ Ușă metalică la intrare Localizare: Ansamblul Casian Renaissance, zona Brana, Șelimbăr, Strada Ceferiștilor. Bloc P+3 etaje, dotat cu lift modern. Predare la final de 2025 ! Imaginile sunt cu titlu de prezentare Bonus: Loc de parcare propriu inclus în preț! Preț: 115.000 € (TVA inclus) Sună acum pentru detalii sau programarea unei vizionări! "Casa Ta, Povestea Noastră!"

54.0 m2

Sibiu, Sibiu

Super apartament 3 camere, 2 bai, terasa si balcon parcare si boxa
13

Super apartament 3 camere, 2 bai, terasa si balcon parcare si boxa

De vânzare: Apartament modern 3 camere si terasă generoasă plus balcon! ✨ **Poze cu titlu de prezentate facute in apartament identic ca si compartimentare si suprafata ! Cauți un apartament complet, care să îmbine confortul, spațiul și un design modern? S-ar putea să-l găsești chiar aici! Apartament 3 camere – 80 mp utili Compartimentare practică și modernă: ✅ Living open space cu bucătărie ✅ Dormitor principal cu baie proprie și acces la balcon ✅ Dormitor secundar ✅ A doua baie ✅ Hol generos ✅ Terasa acoperită de 9 mp si balcon Acesta este situat în ansamblul Casian Renaissance, în zona Brana, Șelimbăr, pe strada Ceferiștilor. Bloc P+3 etaje, dotat cu lift de ultimă generație. Predare la cheie la final de 2025 – Semifinisat dar cu posibilitate de predare la cheie pe gustul dumneavoastra. Bonus: Loc de parcare propriu + boxă de depozitare incluse în preț! Preț: 149000 € (TVA inclus) Sună acum pentru mai multe detalii sau programarea unei vizionări

80.0 m2

Sibiu, Sibiu

Dimineți însorite la tine pe terasă ap. 3 cam 2 bai  , parcare, boxă
12

Dimineți însorite la tine pe terasă ap. 3 cam 2 bai , parcare, boxă

De vânzare: Apartament modern 3 camere si terasă generoasă plus balcon! ✨ **Poze cu titlu de prezentate facute in apartament identic ca si compartimentare si suprafata ! Cauți un apartament complet, care să îmbine confortul, spațiul și un design modern? S-ar putea să-l găsești chiar aici! Apartament 3 camere – 80 mp utili Compartimentare practică și modernă: ✅ Living open space cu bucătărie ✅ Dormitor principal cu baie proprie și acces la balcon ✅ Dormitor secundar ✅ A doua baie ✅ Hol generos ✅ Terasa acoperită de 9 mp si balcon Acesta este situat în ansamblul Casian Renaissance, în zona Brana, Șelimbăr, pe strada Ceferiștilor. Bloc P+3 etaje, dotat cu lift de ultimă generație. Predare la final de 2025 stadiu semifinisat Bonus: Loc de parcare propriu + boxă de depozitare incluse în preț! Preț: 149000 € Tva inclus - Comsion 0 % Sună acum pentru mai multe detalii sau programarea unei vizionări Sibiu Estate - Casa ta, Povestea Noastra!

80.0 m2

Sibiu, Sibiu