Construim apartamente cu 2 si 3 camere in Com Giroc jud Timis
95 000
EUR
1792 EUR/m2
Valabil din 3/18/2026 8:14:12 AM
3
1 / 10
Specificații
Suprafata utila
53
m2
Numar camere
2 camere
Etaj
Compartimentare
decomandat
Anul constructiei
2025
Incalzire
centrala proprie
Numar niveluri
4
Locuri parcare
1
Structura de rezistenta
beton
Destinatie
Rezidential
Amenajare strazi
Iluminat stradal
Utilitati generale
Apa, Canalizare, CATV, Curent, Gaz
Sistem incalzire
Centrala proprie, Incalzire prin pardoseala
Acces internet
Cablu, Fibra optica, Wireless
Ferestre cu geam termopan
PVC
Usa intrare
Metal
Izolatii termice
Bloc izolat termic
Podele
Gresie, Parchet
Pereti
Faianta, Vopsea lavabila
Contorizare
Apometre, Contor gaz
Descriere
Apartamente noi cu 2 și 3 camere în Giroc Str. Platanilor, jud. Timiș
Construim un ansamblu rezidențial modern în comuna Giroc, pe strada Platanilor, format din apartamente cu 2 și 3 camere, având suprafețe utile între 53 și 81 mp. Proiectul este conceput pentru a oferi confort, eficiență și flexibilitate la achiziție, inclusiv cu plată eșalonată până la 10 ani direct către dezvoltator.
Tipuri de apartamente disponibile:
2 camere, 53 mp utili (decomandat) 95.000 TVA inclus
2 camere, 54 mp utili (semidecomandat) 96.500 TVA inclus
2 camere, 59 mp utili (decomandat) 104.500 TVA inclus
3 camere, 63 mp utili (decomandat) 110.800 TVA inclus
3 camere, 81 mp utili (decomandat) 130.000 + TVA
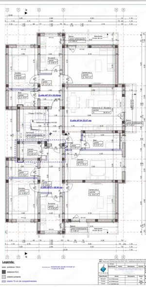
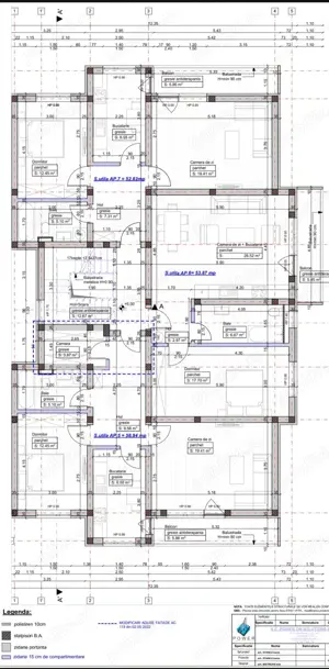
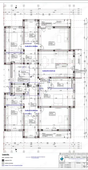
Compartimentări orientative:
2 camere 53 mp (decomandat):
Hol: 7,31 mp
Baie: 5,25 m
Bucătărie închisă: 8,66 mp
Dormitor: 12,45 mp
Living: 19,41 mp
Balcon: 5,86 mp
2 camere 54 mp (semidecomandat):
Hol: 3,41 mp
Dormitor: 17,70 mp
Baie: 6,88 mp
Living + bucătărie open space: 26,27 mp
Balcon: 5,45 mp
2 camere 59 mp (decomandat):
Living: 19,41 mp
Bucătărie închisă: 8,66 mp
Dormitor: 12,45 mp
Baie: 5,25 mp
Hol: 9,66 mp
Cămară: 3,87 mp
Balcon: 5,86 mp
3 camere 63 mp (decomandat):
Dormitor: 11,63 mp
Dormitor secundar birou: 7,65 mp
Baie: 5,58 mp
Living: 19,40 mp
Bucătărie: 13,47 mp
3 camere 81 mp (decomandat):
Dormitor matrimonial: 15,95 mp
Dormitor: 12,00 mp
Living: 19,41 mp
Bucătărie: 8,78 mp
Baie principală: 6,12 mp
Baie secundară: 3,52 mp
Hol: 11,71 mp
Cămară: 3,88 mp
Dotări și beneficii incluse:
Încălzire în pardoseală cu centrală proprie
Loc de parcare inclus în preț
Apartamente finisate complet, racordate la toate utilitățile
Posibilitate de plată eșalonată până la 10 ani, cu avans de la 5.000
Prețuri la plata în 10 ani:
53 mp: 128.260 TVA inclus
54 mp: 130.680 TVA inclus
Ofertă limitată:
La plata integrală în stadiul de roșu 1350 mp + TVA
Termen finalizare construcție: 12 luni
Contactează-ne pentru detalii, oferte actualizate sau programarea unei vizionări.
Trimite mesaj pe WhatsApp sau email pentru planuri detaliate și disponibilitate.
Raportează
Construim un ansamblu rezidențial modern în comuna Giroc, pe strada Platanilor, format din apartamente cu 2 și 3 camere, având suprafețe utile între 53 și 81 mp. Proiectul este conceput pentru a oferi confort, eficiență și flexibilitate la achiziție, inclusiv cu plată eșalonată până la 10 ani direct către dezvoltator.
Tipuri de apartamente disponibile:
2 camere, 53 mp utili (decomandat) 95.000 TVA inclus
2 camere, 54 mp utili (semidecomandat) 96.500 TVA inclus
2 camere, 59 mp utili (decomandat) 104.500 TVA inclus
3 camere, 63 mp utili (decomandat) 110.800 TVA inclus
3 camere, 81 mp utili (decomandat) 130.000 + TVA
Compartimentări orientative:
2 camere 53 mp (decomandat):
Hol: 7,31 mp
Baie: 5,25 m
Bucătărie închisă: 8,66 mp
Dormitor: 12,45 mp
Living: 19,41 mp
Balcon: 5,86 mp
2 camere 54 mp (semidecomandat):
Hol: 3,41 mp
Dormitor: 17,70 mp
Baie: 6,88 mp
Living + bucătărie open space: 26,27 mp
Balcon: 5,45 mp
2 camere 59 mp (decomandat):
Living: 19,41 mp
Bucătărie închisă: 8,66 mp
Dormitor: 12,45 mp
Baie: 5,25 mp
Hol: 9,66 mp
Cămară: 3,87 mp
Balcon: 5,86 mp
3 camere 63 mp (decomandat):
Dormitor: 11,63 mp
Dormitor secundar birou: 7,65 mp
Baie: 5,58 mp
Living: 19,40 mp
Bucătărie: 13,47 mp
3 camere 81 mp (decomandat):
Dormitor matrimonial: 15,95 mp
Dormitor: 12,00 mp
Living: 19,41 mp
Bucătărie: 8,78 mp
Baie principală: 6,12 mp
Baie secundară: 3,52 mp
Hol: 11,71 mp
Cămară: 3,88 mp
Dotări și beneficii incluse:
Încălzire în pardoseală cu centrală proprie
Loc de parcare inclus în preț
Apartamente finisate complet, racordate la toate utilitățile
Posibilitate de plată eșalonată până la 10 ani, cu avans de la 5.000
Prețuri la plata în 10 ani:
53 mp: 128.260 TVA inclus
54 mp: 130.680 TVA inclus
Ofertă limitată:
La plata integrală în stadiul de roșu 1350 mp + TVA
Termen finalizare construcție: 12 luni
Contactează-ne pentru detalii, oferte actualizate sau programarea unei vizionări.
Trimite mesaj pe WhatsApp sau email pentru planuri detaliate și disponibilitate.
ID anunț: 1721632858
Fă ofertă
Anunțuri recomandate
Pentru a contacta acest utilizator, intră în contul tău Romimo.ro sau creează-ți rapid un cont nou!