Apartament 3 camere, 78 mp, zona Balcescu

85 000 EUR 1090 EUR/m2
Valabil din 3/9/2026 5:04:52 PM
Specificații
Suprafata utila
78 m2
Numar camere
3 camere
Numar bai
2
Etaj
Compartimentare
decomandat
Numar niveluri
1
Cod de identificare
P166438
Disponibilitate proprietate
imediat
Utilitati generale
Curent, Apa, Canalizare, Gaz
Stare interior
Renovat
Podele
Parchet
Pereti
Vopsea lavabila
Descriere
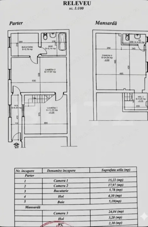
Blitz vă propune spre închiriere un apartament cu 3 camere, dispus pe două niveluri (parter + mansardă), cu o suprafață utilă de aproximativ 48 mp la parter și un pod de 30 mp amenajat pentru locuință, compartimentat eficient pentru confortul unei familii.

La parter se regăsesc două camere, bucătărie separată, hol și baie, iar la mansardă se află o cameră spațioasă, hol și grup sanitar. Compartimentarea oferă intimitate și spațiu generos, fiind potrivit atât pentru locuit, cât și pentru persoane care își doresc zone separate pentru relaxare și lucru.

Menționăm că doar parterul este intabulat în CF, mansarda de 30 mp nefiind intabulată. Cu toate acestea, mansarda este deja amenajată pentru locuit, reprezentând o oportunitate excelentă de investiție și un avantaj major pentru viitorul proprietar.

Cod ofertă / ID BLITZ: P166438

ID anunț: 1773068782

Raportează
Fă ofertă

Anunțuri recomandate

Contactează vânzătorul
Pentru a reduce riscul mesajelor de tip spam, adresele de email nu sunt permise in mesagerie.
Caractere rămase: 3000
Adaugă fișier
? Fișiere acceptate: jpg, jpeg, png, doc, pdf, txt, xls, docx, xlsx, odt, heic, heif, cu o mărime maximă de 10Mb.

BUN - 8 evaluări

Cei mai multi utilizatori ar descrie experiența cu acest utilizator ca fiind satisfăcătoare