Studio spațios într-un imobil tip boutique zona Palazu Mare
84 700
EUR
1925 EUR/m2
Valabil din 6/27/2025 1:26:30 PM
2
1 / 3
Specificații
Clasa energetica
A
Suprafata utila
44
m2
Numar camere
1 camera
Numar bai
1
Etaj
Compartimentare
decomandat
Confort
Lux
Anul constructiei
2025
Incalzire
centrala proprie
Numar niveluri
3
Cod de identificare
P3295
Structura de rezistenta
bca
Numar bucatarii
1
Numar balcoane
1
Disponibilitate proprietate
imediat
Destinatie
Rezidential
Amenajare strazi
Asfaltate, Iluminat stradal, Mijloace de transport in comun
Utilitati generale
Curent, Apa, Canalizare, Gaz
Sistem incalzire
Centrala proprie
Stare interior
Necesita renovare
Ferestre cu geam termopan
Aluminiu
Usa intrare
Metal
Izolatii termice
Exterior
Dotari imobil
Lift
Descriere
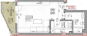
Acest studio inteligent compartimentat, cu o suprafață utilă de 43,81 mp (din care 6,78 mp balcon), reprezintă o alegere ideală pentru cei care caută liniște, confort și funcționalitate.
Situat la etajul 1, locuinta oferă:
- Living generos de 26 mp
- Bucătărie închisă
- Baie luminoasă și bine proporționată
- Balcon ideal pentru relaxare
Studio face parte dintr-un bloc tip boutique cu regim de înălțime P+3, amplasat într-o zonă liniștită din Palazu Mare, pe strada Liviu Rebreanu.
Imobilul este dotat cu lift și include doar 9 apartamente, ceea ce asigură un cadru intim și bine organizat.
- Termen de finalizare: aprilie 2026
Apartamentele se predau finisate la alb, cu:
- Încălzire în pardoseală
- Instalații electrice și sanitare pe poziție
- Pereți gletuiți
- Ușă metalică de intrare
- Izolație exterioară
- Loc de parcare inclus în preț
Un proiect modern, cu un număr restrâns de unități locative, ideal pentru cei care apreciază confortul, discreția și accesul facil la toate facilitățile urbane.
** Prețul afișat include TVA 21%.
Raportează
Situat la etajul 1, locuinta oferă:
- Living generos de 26 mp
- Bucătărie închisă
- Baie luminoasă și bine proporționată
- Balcon ideal pentru relaxare
Studio face parte dintr-un bloc tip boutique cu regim de înălțime P+3, amplasat într-o zonă liniștită din Palazu Mare, pe strada Liviu Rebreanu.
Imobilul este dotat cu lift și include doar 9 apartamente, ceea ce asigură un cadru intim și bine organizat.
- Termen de finalizare: aprilie 2026
Apartamentele se predau finisate la alb, cu:
- Încălzire în pardoseală
- Instalații electrice și sanitare pe poziție
- Pereți gletuiți
- Ușă metalică de intrare
- Izolație exterioară
- Loc de parcare inclus în preț
Un proiect modern, cu un număr restrâns de unități locative, ideal pentru cei care apreciază confortul, discreția și accesul facil la toate facilitățile urbane.
** Prețul afișat include TVA 21%.
ID anunț: 1751020385
Fă ofertă
Anunțuri recomandate
Pentru a contacta acest utilizator, intră în contul tău Romimo.ro sau creează-ți rapid un cont nou!