Casa individuala 4 camere de vanzare, teren 400 mp, Utvin, Timis
171 000
EUR
1629 EUR/m2
Valabil din 4/1/2026 5:31:57 AM
1 / 10
Specificații
Suprafata utila
105
m2
Suprafata terenului
400
m2
Numar bai
2
Anul constructiei
2026
Stadiul constructiei
Gri
Numar bucatarii
1
Numar terase
1
Disponibilitate proprietate
Imediat
Amenajare strazi
Iluminat stradal, Mijloace de transport in comun
Utilitati generale
Apa, Canalizare, CATV, Curent, Gaz, Telefon
Sistem incalzire
Centrala proprie, Incalzire prin pardoseala
Pereti
Vopsea lavabila
Mobilat
Nemobilat
Dotari imobil
Acoperis
Descriere
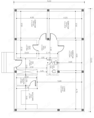
Agentia imobiliara APOSTU ESTATE va propune spre vanzare o casa individuala pe parter cu 4 camere, 3 dormitoare, 2 bai, debara. terasa.
Aceasta casa primitoare are o suprafata utila de 105 mp, amplasată pe un teren de 400 mp, situata într-o zona liniştita, cu toate utilitaţile disponibile.
Compartimentare:
Living generos, open-space, cu cu bucatarie;
Debara;
3 Dormitoare;
2 Bai;
Terasa 10 mp;
Confortul termic este realizat prin intermediul centralei proprii, incalzire prin pardoseala.
Casa este complet racordată la toate utilitaţile (apa, gaz, curent, canalizare) şi ofera un spaţiu confortabil, potrivit pentru o familie.
Pozele afisate sunt randari, casa fiind in constructie (la gri) in acest moment.
Termen de predare iunie 2026
Agentia imobiliara Apostu Estate va ofera consultanta bancara gratuita prin intermediul colaboratorilor nostri pentru alegerea celui mai potrivit tip de credit, astfel incat tu sa devi noul proprietar al acestui apartament.
Va asteptam cu drag la o vizionare!
ID intern: CP3009068.
Raportează
Aceasta casa primitoare are o suprafata utila de 105 mp, amplasată pe un teren de 400 mp, situata într-o zona liniştita, cu toate utilitaţile disponibile.
Compartimentare:
Living generos, open-space, cu cu bucatarie;
Debara;
3 Dormitoare;
2 Bai;
Terasa 10 mp;
Confortul termic este realizat prin intermediul centralei proprii, incalzire prin pardoseala.
Casa este complet racordată la toate utilitaţile (apa, gaz, curent, canalizare) şi ofera un spaţiu confortabil, potrivit pentru o familie.
Pozele afisate sunt randari, casa fiind in constructie (la gri) in acest moment.
Termen de predare iunie 2026
Agentia imobiliara Apostu Estate va ofera consultanta bancara gratuita prin intermediul colaboratorilor nostri pentru alegerea celui mai potrivit tip de credit, astfel incat tu sa devi noul proprietar al acestui apartament.
Va asteptam cu drag la o vizionare!
ID intern: CP3009068.
ID anunț: 1775011528
Fă ofertă
Anunțuri recomandate
Pentru a contacta acest utilizator, intră în contul tău Romimo.ro sau creează-ți rapid un cont nou!
APOSTU ESTATE
Agenție imobiliară