Salvează căutarea Adaugă anunț
Vei fi notificat de câte ori:

Trimite unui prieten

Trimite

Tere+Autorizatie | 1262mp | Parta

50 000 EUR
Valabil din 10/3/2025 2:53:43 PM
Specificații
Suprafata terenului
1262 m2
Numar fronturi
1
Amenajare strazi
Asfaltate, Iluminat stradal, Mijloace de transport in comun
Utilitati generale
Apa, Canalizare, Curent, Gaz
Alte caracteristici
Acces auto, La sosea, Oportunitati de investitie, Teren imprejmuit
Descriere
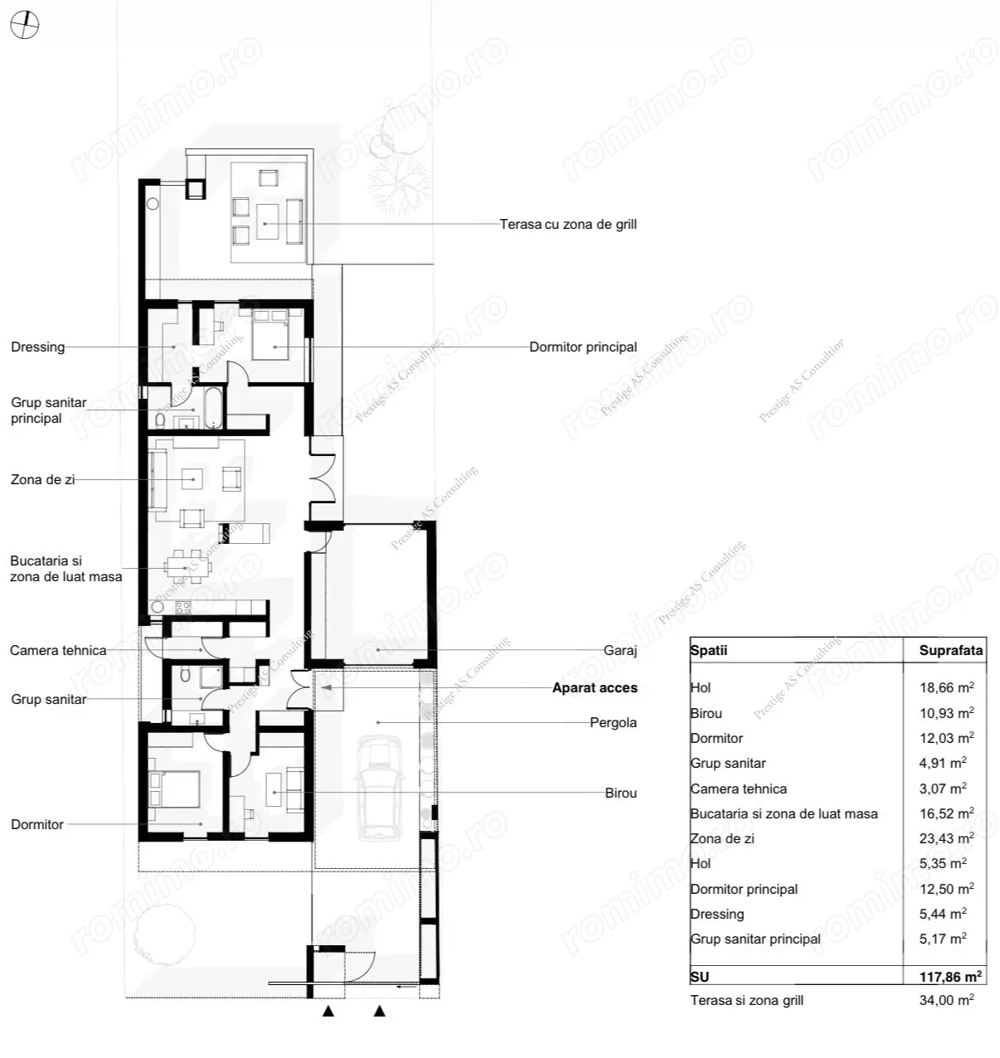
Va propunem spre vanzare un Teren intravilan, imprejmuit, in suprafata de 1262mp, cu proiect pentru vila dispusa pe parter, in Comuna Parta -jud. Timis.
Terenul se afla in Vatra Veche al comunei.
Toate utilitatile se afla in fata parcelei.
Suntem disponibili pentru a va oferi mai multe detalii.

ID anunț: 1759493396

Raportează
Fă ofertă

Anunțuri recomandate

Contactează vânzătorul
Pentru a reduce riscul mesajelor de tip spam, adresele de email nu sunt permise in mesagerie.
Caractere rămase: 3000
Adaugă fișier
? Fișiere acceptate: jpg, jpeg, png, doc, pdf, txt, xls, docx, xlsx, odt, heic, heif, cu o mărime maximă de 10Mb.