Salvează căutarea Adaugă anunț
Vei fi notificat de câte ori:

Trimite unui prieten

Trimite

SOARELUI - 3 CAM - DECOMANDAT - 2BAI - 2BALCOANE - RENOVAT - ETJ.3-

138 900 EUR 2137 EUR/m2
Valabil din 10/6/2025 8:46:42 PM
Specificații
Suprafata utila
65 m2
Etaj
Compartimentare
decomandat
Confort
1
Anul constructiei
1980
Numar niveluri
4
Numar balcoane
2
Destinatie
Rezidential
Amenajare strazi
Asfaltate
Usa intrare
Metal
Podele
Gresie, Parchet
Bucatarie
Utilata, Mobilata
Mobilat
Complet
Descriere

Agentia Imobiliara PRIMUM - Timisoara are placerea de a va prezenta spre vanzare apartament cu 3 camere, decomandat, complet RENOVAT, MOBILAT SI UTILAT, situat in Timisoara, Zona SOARELUI, zona linistita, usor accesibila, aproape de principalele puncte de interes: multiple mijloace de transport in comun; acces rapid catre supermarketuri, magazine, farmacii; in proximitatea scolilor, gradinitelor si parcurilor.

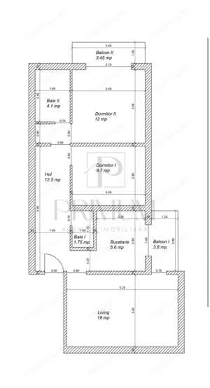
Aceasta se afla la etajul 3, intr-un imobil cu 4 nivele cu vedere pe 2 parti.

Apartamentul este decomandat cu suprafata utila 65 mp fara balcoane, si prezinta urmatoarea compartimentare:
- 1 Hol acces
- 2 Bai - 1 baie cu cada si geam + 1 WC serviciu
- 1 Living
- 1 Bucatarie
- 2 Dormitoare
- 2 Balcoane inchise

Confortul termic se realizeaza prin sistemul de termoficare cu posibilitate de centrala proprie (teava de gaz trasa pe scara) si 2xA C.

Apartamentul ofera un ambient modern, cu spatii deschise si confortabile, fiind potrivit atat pentru familii, cat si pentru cei care isi doresc un camin practic si bine amplasat.
Este ideal pentru cei care cauta un spatiu generos si bine compartimentat sau INVESTITIE (inchiriere).
Se accepta credit bancar! Ne angajam sa va oferim consultanta imobiliara si financiara pe toata durata procesului de tranzactie.

Detaliile cu caracter tehnic ne sunt furnizate de catre proprietar.
Pentru informatii suplimentare si o vizionare, nu ezitati sa ma contactati.

ID anunț: 1759773019

Raportează
Fă ofertă

Anunțuri recomandate

Contactează vânzătorul
Pentru a reduce riscul mesajelor de tip spam, adresele de email nu sunt permise in mesagerie.
Caractere rămase: 3000
Adaugă fișier
? Fișiere acceptate: jpg, jpeg, png, doc, pdf, txt, xls, docx, xlsx, odt, heic, heif, cu o mărime maximă de 10Mb.