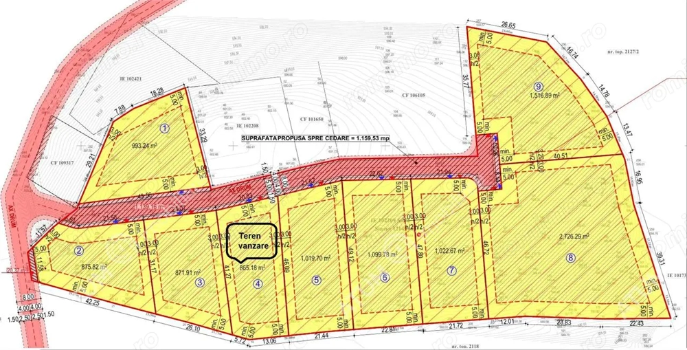
Teren intravilan 865 mp in Tocile pretabil casa de vacanta

41 500 EUR
Valabil din 2/12/2026 12:15:53 PM
Specificații
Suprafata terenului
865 m2
Front stradal
21
Numar fronturi
1
Descriere
Va propun spre vanzare un teren intravilan cu o suprafata generoasa de 865 mp, situat in localitatea Tocile, una dintre cele mai cautate locatii pentru dezvoltarea de case de vacanta si pensiuni turistice. Proprietatea este parte dintr-un ansamblu de 9 parcele, toate avand deschidere la acelasi drum de acces privat cu latimea de 8 metri, drum prevazut in documentatia PUZ aferenta zonei.

Zona se remarca prin liniste, peisaje naturale si un cadru ideal pentru cei care isi doresc o locuinta intr-un mediu curat, aerisit si neaglomerat, dar totodata aflat la doar cateva minute de municipiul Sibiu.

Conform Regulamentului Local de Urbanism aferent PUZ-ului se pot realiza constructii cu functiuni turistice si de recreere, precum case de vacanta, pensiuni, bungalow-uri si anexe aferente acestora, cu respectarea urmatorilor indici urbanistici si conditii tehnice:

Regim de inaltime admis: P+E (inaltime maxima la coama 11 m, streasina 7 m)

POT maxim: 35%

CUT maxim: 0.7

Retrageri fata de limite: minim 5ndash;7 m la strada, minim 3 m lateral spate

Suprafata minima a unei parcele construibile: 350 mp

Utilizari admise: case de vacanta, pensiuni turistice, bungalow-uri, servicii turistice, anexe

Obligativitatea amenajarii de spatii verzi minime: 30% din teren

Toate locurile de parcare trebuie realizate pe parcela proprie

Drumul de acces este inclus in proiectul de dezmembrare, are 8 metri latime si urmeaza sa fie notat in cartea funciara ca drum cu servitute de trecere pentru toate parcelele din ansamblu, conform cerintelor urbanistice. Utilitatile se afla la aproximativ 200 de metri de teren, putand fi extinse in mod organizat si eficient, fie individual, fie prin asociere cu ceilalti proprietari din zona. Documentatia urbanistica mentioneaza racordarea la reteaua electrica si de apa-canal existenta.

Terenul are o forma regulata, este bine proportionat si ofera posibilitatea configurarii optime a unei constructii, beneficiind de o deschidere generoasa si de o pozitionare excelenta fata de drum. Zona este in plina dezvoltare, cu potential mare atat pentru investitii turistice, cat si pentru constructia unei locuinte permanente intr-o zona retrasa si ferita de trafic.

Valoarea terenului est de 41.500 euro.

ID anunț: 1770891658

Raportează
Fă ofertă

Anunțuri recomandate

Contactează vânzătorul
Pentru a reduce riscul mesajelor de tip spam, adresele de email nu sunt permise in mesagerie.
Caractere rămase: 3000
Adaugă fișier
? Fișiere acceptate: jpg, jpeg, png, doc, pdf, txt, xls, docx, xlsx, odt, heic, heif, cu o mărime maximă de 10Mb.

Atum Imobiliare

Agenție imobiliară

BUN - 4 evaluări

Cei mai multi utilizatori ar descrie experiența cu acest utilizator ca fiind satisfăcătoare